



Gelistet von CENTURY 21 アールズ旭川 (宅建免許番号:北海道知事 上川(3)001177)
Gewerbeimmobilien zum Verkauf in 花園1丁目7-103, 上川郡美瑛町, Hokkaido 071-0248, Japan steht derzeit zum Verkauf.花園1丁目7-103, 上川郡美瑛町, Hokkaido 071-0248, Japan ist für 833.761 $ gelistet.
Datum aktualisiert: 02.12.2025
833.761 $ USD
130.000.000 ¥ JPY
Gewerbeimmobilie zum Verkauf, 花園1丁目7-103, 上川郡美瑛町, Hokkaido 071-0248, Japan
- MLS Nr.144901-269
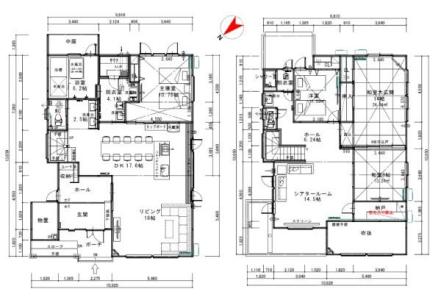
- Mindestverkaufsfläche
235 m²
Merkmale der Immobilie
Grundbesitz
- Immobiliengröße:
235 m²
Grundstück
- Grundstücksgröße:
293 m²
Konstruktion
- Jahr der Konstruktion: 2023
Beschreibung
【情報更新日】:2025年11月27日, 【有効期限】:2025年12月11日, 【セールスポイント】:美瑛町の町中にあるコンドミニアム。現在宿泊施設として稼働中。 宿泊施設・別荘等にご利用ください。 , 【沿線】:富良野線, 【最寄駅】:美瑛, 【徒歩】:12分, 【土地権利】:所有権, 【土地面積基準】:公簿, 【地目】:宅地, 【接道状況】:一方, 【当社の取引態様】:専任, 【私道】:無, 【都市-計画】:未線引区域, 【用途地域】:第一種中高層住居専用地域, 【建ぺい率】:60%, 【容積率】:200%, 【国土利用計画法】:不要, 【建物区分】:その他, 【建物構造】:木造, 【建物現況】:賃貸中, 【築年月】:2023年04月, 【引渡時期】:相談, 【物件コード】:144901-269
Standort
花園1丁目7-103, 上川郡美瑛町, Hokkaido 071-0248, Japan