




Listed By CENTURY 21 Synergy Liberec
The Home for Sale located at Kunratice, Liberec 46401, Czech Republic is currently for sale. Kunratice, Liberec 46401, Czech Republic is listed for $177,652.
$177,652 USD
CZK3,700,000
Home for Sale, Kunratice, Liberec 46401, Czech Republic
- Home/Lot size
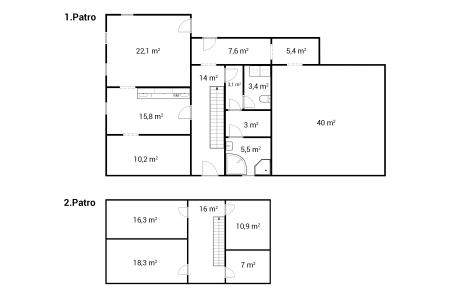
161 m²
Property features
Property
- Property size:
161 m² - Type: House
- Features: CellarParking
Lot/Land
- Land/Lot size:
549 m²
Construction
- Condition: Good
Parking/Garage
- Parking description: UndergroundOpen Parking
- Assigned or reserved parking space: 4
Heating and Cooling
- Heating system: Radiators
- Hot water service: Unit Water Heaters
Utilities
- Other utilities: WaterSewer220V ThroughoutGasElectricHot Water
Description
Rodinný dům, z kterého dýchá historie a nabízí možnosti pro klidný rodinný život.
Nynější majitelé začali s rekonstrukcí tohoto objektu. Aktuálně je renovace ve fázi, kdy je první nadzemní podlaží připraveno kompletně k užívání. Včetně nových rozvodů, podlah, stěn, koupelny i technického zázemí.
Do druhého nadzemního podlaží jsou připraveny rozvody topení a bude jen na nových majitelích, jak dispozici využijí. Kde bude ložnice a kde dětský pokoj, už je otázkou budoucí.
A pokud by bylo i při stávající dispozici 5+1 málo místa, je tu prostorné podkroví, které dává další možnosti jak rozšířit aktuálních 161 m² podlahové plochy.
V rámci rekonstrukce byla vytvořena i technická místnost pro pračku a sušičku, dvě toalety a koupelna. Včetně nových rozvodů vody a odpadů. Stejně tak je kompletně rozvedena i nová elektřina v přízemí.
Jako tepelný zdroj byl zvolen automatický kotel na tuhá paliva napojený na nový komín. Voda je připojena na veřejný vodovod.
Kromě obytné části nabízí dům také prostornou stodolu, venkovní samostatnou garáž a byla instalována i elektrická brána pro vjezd a kamerový systém.
Nemovitost je možné financovat hypotečním úvěrem a také lze využít dotačních programů na rekonstrukce nemovitosti. V rámci prohlídky nemovitosti Vám rád sdělím veškeré dostupné informace k nemovitosti i financování.
Těším se na osobní setkání.
S pozdravem, Vladimír Řehák
Location
Kunratice, Liberec 46401, Czech Republic