
1/2
342.101 US$ USD
292.000 € EUR
Apartamento en Venta, L Hay Les Roses, Isla De Francia 94240, Francia
- MLS Nº202_2772_6939
- 1
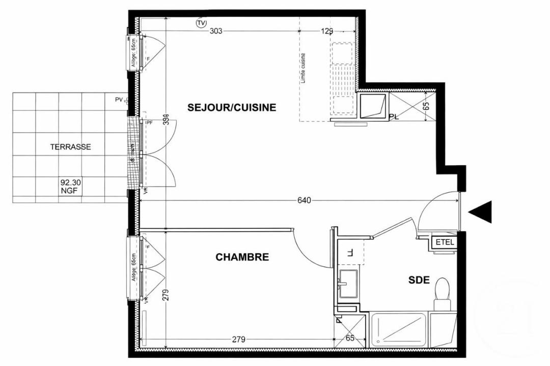
43 m²
Listado por CENTURY 21 L'Immobilière RN 20
La Departamento en Venta ubicada en L Hay Les Roses, Isla De Francia 94240, Francia actualmente está en ventaL Hay Les Roses, Isla De Francia 94240, Francia está listado para342.101 US$.Esta propiedad tiene 1 dormitorio, 0 baños características.
Fecha de actualización: 16 feb 2026
Características del inmueble
Propiedad
- Tamaño del inmueble:
43 m²
Construcción
- Año de construcción: 2026
Estacionamiento/Garaje
- Descripción del aparcamiento: Aparcamiento CubiertoEspacio Para El Cochecito De Golf/Aparcamiento
- Plaza de aparcamiento reservada o asignada: 2
Habitaciones
- Habitaciones: 1
Seguridad
- Características: Control De Acceso
Calefacción y refrigeración
- Sistema de calefacción: Central
Comunidad
- Características: Ascensor
Descripción
"L HAY LES ROSES, à deux pas du centre, résidence ""les jardins art déco "" 2 pièces avec terrasse privative comprenant entrée, séjour avec coin cuisine, chambre, salle d'eau wc.
2 parkings en sous-sol
Volets roulants électriques
DPE prévisionnel B
Livraison prévisionnelle:1er trimestre 2027"
Ubicación
L Hay Les Roses, Isla De Francia 94240, Francia