




CENTURY 21 Manpowerによるリスティング
Vila Nova De Gaia, ポルト 4430-062, ポルトガルの販売中の 集合住宅 は現在売り物件としてリスティングされています。Vila Nova De Gaia, ポルト 4430-062, ポルトガルは $1,276,250 で売り出されています。この物件には次の特徴があります:10 ベッドルーム, 12バスルーム。
$1,276,250 USD
€1,100,000 EUR
販売中の集合住宅, Vila Nova De Gaia, ポルト 4430-062, ポルトガル
- MLS登録番号C0466-00035
- 寝室数10
- バス・トイレ数12
- 家屋/敷地面積
1,144 m²
物件の特徴
物件
- 物件の広さ:
1,144 m² - 場所: 区
敷地/土地
- 土地/分譲地の面積:
1,332 m²
Construction
- 建築年: 1988
駐車場/ガレージ
- 指定または予約駐車スペース: 11
寝室数
- 寝室数: 10
バス・トイレ数
- バスルーム(浴室)総数: 12
説明
Está à procura de uma oportunidade para investimento, que tenha uma excelente localização e um elevado potencial de retorno do investimento? Não procure mais, veja esta excelente oportunidade em Vila Nova de Gaia!
Situada numa localização privilegiada perto de todos os serviços, transportes, hospitais, e comércio, este imóvel é perfeito para quem procura facilidades de acessibilidade e comodidade, para uma vida dinâmica, confortável e alegre. Além disso, a nova linha de metro, a extensão da linha amarela, que passa "à porta de casa" vai oferecer ainda mais oportunidades de conectividade.
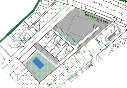
Esta propriedade, composta por um lote de 1.331,54 m² com PIP aprovado em Julho de 2025 pela Câmara Municipal de Gaia, para executar um total de 1144,45 m² de área total de construção.
Fomos mais longe e elaboramos um plano para facilitar a sua leitura e visualizar o que poderá ser feito: Os planos preveem um belo condomínio fechado que passa pela transformação das construções existentes, totalizando 8 fracções. Apartamentos de tipologias T1 e T3. Áreas exteriores generosas, boa circulação, estacionamento privada e fabulosas vistas que vão até onde o horizonte permitir!
Área do lote = 1.331,54 m²
Área implantação total = 725,96 m²
Área construção total:
- Total = 1.144,45 m²
- Habitação = 918,40 m2
- Estacionamento = 99,40 m2
- Anexo/Alpendre = 126,65 m2
Total de Frações = 8
Estacionamento interno = 11
Quer opte pelo mercado de arrendamento ou pela venda das fracções, poderá obter retornos muito interessantes sobre o seu investimento.
Não perca esta incrível oportunidade de investir numa das localizações mais desejadas de Vila Nova de Gaia.
Entre em contato conosco hoje para saber mais sobre este negócio, e como o podemos ajudar!
場所
Vila Nova De Gaia, ポルト 4430-062, ポルトガル