



Listado por CENTURY 21 ネクストワン (宅建免許番号:北海道知事 十勝(3)000708)
O Casa unifamiliar à venda localizado em 西十二条南12丁目1-12, 西12条南12丁目の中古住宅 ※旗竿地, 帯広市, Hokkaido 080-0022, Japão está atualmente disponível para venda.西十二条南12丁目1-12, 西12条南12丁目の中古住宅 ※旗竿地, 帯広市, Hokkaido 080-0022, Japão está listado porUS$ 41.586.Esta propriedade possui as seguintes características:4 quartos, 0 banheiros.
US$ 41.586 USD
JP¥ 6.500.000 JPY
Casa unifamiliar à venda, 西十二条南12丁目1-12, 西12条南12丁目の中古住宅 ※旗竿地, 帯広市, Hokkaido 080-0022, Japão
- Referência133301-1652
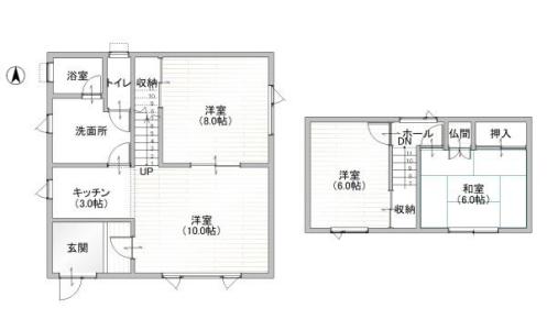
- Quartos4
- Tamanho da casa/lote
77 m²
Características da propriedade
Nieruchomość
- Tamanho da propriedade:
77 m² - Lokalizacja: Empreendimento
Lote/Terreno
- Tamanho do terreno/lote:
165 m² - Front działki:
3 m²
Budowa
- Ano de construção: 1990
Estacionamento/Garagem
- Przydzielone lub zarezerwowane miejsce parkingowe: 2
Quartos
- Quartos: 4
Descrição
【情報更新日】:2025年11月28日, 【有効期限】:2025年12月12日, 【セールスポイント】:お手頃な価格の平成築の中古戸建です♪ 使い勝手の良い4DK♪, 【沿線】:根室本線, 【最寄駅】:帯広, 【徒歩】:21分, 【土地権利】:所有権, 【土地面積基準】:公簿, 【地目】:宅地, 【接道状況】:一方, 【接道幅員】:10.9m, 【接道接面幅】:2.71m, 【当社の取引態様】:専任, 【私道】:無, 【ガス】:個別プロパン, 【水道】:公営水道, 【汚水】:公共下水, 【雑排水】:公共下水, 【都市-計画】:市街化区域, 【用途地域】:第一種住居地域, 【建ぺい率】:60%, 【容積率】:200%, 【国土利用計画法】:不要, 【建物区分】:中古一戸建, 【建物構造】:木造, 【建物現況】:空家, 【築年月】:1990年09月, 【引渡時期】:相談, 【物件コード】:133301-1652
Localização
西十二条南12丁目1-12, 西12条南12丁目の中古住宅 ※旗竿地, 帯広市, Hokkaido 080-0022, Japão