



CENTURY 21 橋本 (宅建免許番号:栃木県知事(1)5338) tarafından ilana verildi
箱森町49-8, 栃木市箱森町 中古戸建, 栃木市, Tochigi 328-0075, Japonya konumunda Satılık Tek Aile Evi şu anda satılık.箱森町49-8, 栃木市箱森町 中古戸建, 栃木市, Tochigi 328-0075, Japonya, $33.908 fiyatından ilana verildi.Bu gayrimenkul 4 yatak odası, 0 banyo özelliklerine sahip.
$33.908 USD
¥5.300.000 JPY
Satılık Tek Aile Evi, 箱森町49-8, 栃木市箱森町 中古戸建, 栃木市, Tochigi 328-0075, Japonya
- MLS Numarası193801-132
- Yatak odası4
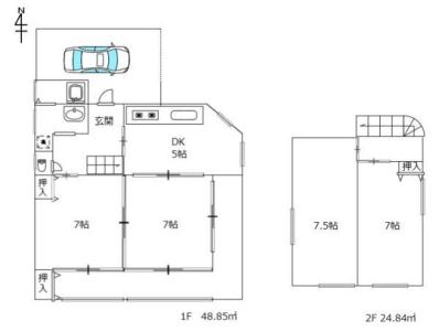
- Ev/parsel ebadı
74 m²
Emlak özellikleri
Mülkiyet
- Emlak büyüklüğü:
74 m² - Konum: Imar
Arsa/Arazi
- Arazi/parsel ebadı:
181 m² - Arsa cephesi:
18 m²
İnşaat
- Yapım yılı: 1983
Otopark/Garaj
- Tahsis edilmiş veya ayrılmış park yeri: 1
Yatak odası
- Yatak odası: 4
Açıklama
【情報更新日】:2025年11月23日, 【有効期限】:2025年12月07日, 【備考】:※契約不適合責任免責※共有私道持分有※残置物処分費売主様負担, 【セールスポイント】:徒歩圏内にスーパーやコンビニ、学校もあり生活利便性◎閑静な住宅地で小さなお子様がいるご家族にも安心です。 , 【沿線】:東武鉄道日光線, 【最寄駅】:新栃木, 【徒歩】:23分, 【土地権利】:所有権, 【土地面積基準】:公簿, 【地目】:宅地, 【接道状況】:一方, 【接道幅員】:4m, 【接道接面幅】:18m, 【当社の取引態様】:専任, 【私道】:有, 【私道持分】:1/9, 【私道面積基準】:公簿, 【私道面積】:440㎡, 【ガス】:個別プロパン, 【水道】:公営水道, 【汚水】:公共下水, 【雑排水】:公共下水, 【都市-計画】:市街化区域, 【用途地域】:第一種低層住居専用地域, 【建ぺい率】:40%, 【容積率】:60%, 【国土利用計画法】:不要, 【建物区分】:中古一戸建, 【建物構造】:木造, 【建物現況】:空家, 【築年月】:1983年02月, 【部屋/建物向き】:南, 【引渡時期】:相談, 【物件コード】:193801-132
Konum
箱森町49-8, 栃木市箱森町 中古戸建, 栃木市, Tochigi 328-0075, Japonya