




房源來自 CENTURY 21 Advantage
位於2 Melissa Drive, Lewiston, 緬因州 04240, 美國的待售 商業地產 現在正在出售。2 Melissa Drive, Lewiston, 緬因州 04240, 美國的掛牌價為 US$589,000 。
US$589,000 USD
待售商用不動產, 2 Melissa Drive, Lewiston, 緬因州 04240, 美國
- MLS#1636104
物業特點
地段/土地
- 土地/面積:
98,622 m² (24.37 ac)
描述
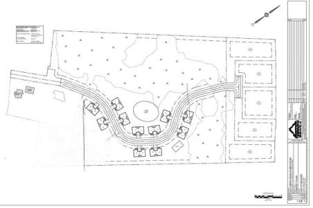
Large Parcel of Land in great location of Lewiston. Land is ripe for development. Some is cleared with a preliminary road for access. Beautiful land with apple trees and city views if built out back. trails on the property as well! Sit back from the main road for privacy. A lot of options for this piece. A survey plan has been done for a subdivision of duplexes An option for a low-income project with the city has been discussed. Or make a family compound! Lots of land lots of possibilities with LDR zoning. Check it out! Soil test and environmental have been performed.
地區
2 Melissa Drive, Lewiston, 緬因州 04240, 美國