




房源來自 CENTURY 21 Synergy Praha, Ke Štvanici
位於Cerhonice, Písek 39804, 捷克共和國的待售 主頁 現在正在出售。Cerhonice, Písek 39804, 捷克共和國的掛牌價為 US$417,694 。
US$417,694 USD
CZK8,690,000
待售房屋, Cerhonice, Písek 39804, 捷克共和國
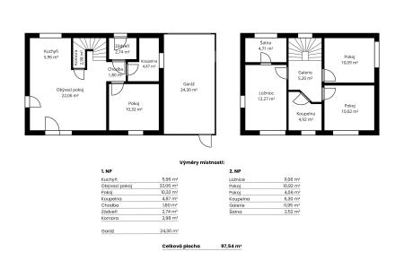
- 房屋/土地面積
126 m²
物業特點
房產
- 物業面積:
126 m² - 類型: 住宅
- 特色: 陽台停車場
地段/土地
- 土地/面積:
1,048 m²
建造物
- 興建年份: 2023
- 建築物狀況: 新建新建築
- 建造物: 木材框架
停車場/車庫
- 車位說明: 有頂停車場露天停車場
- 專用/預留車位: 2
外部特徵
- 戶外空間: 陽台
- 有蓋車位:
供暖及冷氣
- 暖氣系統: 小型暖器
- 冷氣系統: 熱泵
公共事業服務
- 電信: 電腦線路
- 其他設施: 水污水下水道全屋設置220伏特電壓電動
描述
Hledáte dokonalé místo pro klidný rodinný život, kde se snoubí moderní design, kvalitní provedení a harmonické prostředí jihočeské krajiny? Právě pro vás je určena tato zcela nová, prostorná dřevostavba, situovaná v malebné obci Cerhonice.
Tato moderní dřevostavba splňuje vysoké standardy současného bydlení – nabízí skvělou tepelnou úspornost, příjemné vnitřní klima a nadčasový design. Dům je kompletně nový a nezařízený, což umožňuje budoucím majitelům vytvořit si interiér přesně podle vlastních představ a životního stylu, jako inspirace slouží vizualizace místností.
Dům je koncipován v dispozici 5+kk, obsahuje pět obytných místností, 2 koupelny, spíž plus kuchyň s jídelním prostorem, který je ideálním místem pro rodinné stolování. Obývací pokoj je dostatečně prostorný a díky velkým francouzským oknům je plný denního světla, což prostor činí velmi příjemným. V horním patře jsou 3 světlé pokoje z čehož 1 obsahuje vlastní šatnu. Nemovitost je situována na krásném, slunném pozemku o rozloze 1048 m², jenž poskytuje dostatek prostoru pro rodinný život, volnočasové aktivity i budoucí zahradní úpravy.
Dům je postaven z kvalitních materiálů, což zaručuje nízkou energetickou náročnost (energetický štítek C). Je vytápěný tepelným čerpadlem - vzduch/vzduch, ohřev vody zajišťuje přímotopy zásobník Ariston Nuos Primo o objemu 200 litrů. V domě je také klimatizace, která může sloužit i jako doplňkový zdroj tepla. Kanalizace je řešena vlastní ČOV. Na pozemku je vrt a uvnitř domu je čistička vody.
Cerhonice jsou malebná jihočeská obec obklopená přírodou, která nabízí klidné bydlení mimo ruch města. Zároveň zde najdete veškerou potřebnou občanskou vybavenost v dosahu několika minut jízdy. Pro rodiny s dětmi i milovníky přírody jde o ideální místo. Také dopravní dostupnost je velmi dobrá díky autobusovému spojení a blízkosti větších měst, jako je Písek.
Pro ty, kteří hledají klidné a příjemné bydlení v srdci Jihočeského kraje, je tento dům ideální volbou. Relaxe v rozlehlé zahradě, moderní vybavení domu a dostatek prostoru pro život činí z tohoto domova opravdu výjimečnou nabídku na trhu.
地區
Cerhonice, Písek 39804, 捷克共和國